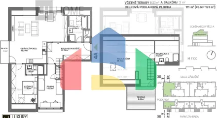
- Терасса: ✓
- Количество этажей: 4
- Площадь терассы: 8 м²
- Лифт: ✓
- Жилая зона: 161 м²
- Балкон: ✓
Prodej podkrovního bytu 4+kk v novostavbě bytového domu s názvem "Residence U zámecké zahrady". Byt se nachází v 4NP a je orientovaný na sever, západ a jih.
Obytná plocha o výměře 105 m2, balkón o výměře 3 m2, terasa o výměře 8 m2, podkroví o výměře 49 m2, celková plocha celkem 161 m2.
Dovolujeme si Vám nabídnout ojedinělý developerský projekt "Rezidence u Zámecké zahrady", který se nachází přímo v centru Kladna, kousek od náměstí Starosty Pavla v Zádušní ulici. Projekt disponuje devatenácti bytovými jednotkami s nadstandartním komfortem odrážející jedinečnost, výjimečnost, klidnou lokalitu s výhledy na zámeckou zahradu a občanskou vybavenost s dopravní dostupností.
Všechny bytové jednotky jsou dispozičně navrženy s ohledem na efektivní využití obytné plochy, při kterých většina nabízí balkon či terasu. Každý byt má dvě sociální místnosti. V nejvyšším patře nabízíme šest podkrovních bytů s půdním prostorem a krásným výhledem na město. Bytový dům nabízí soukromí, v podobě dvou oddělených vchodů o třech bytech na patře s vlastním výtahem. V suterénu garážová stání, sklepy.
Prodej přímo od developera, neplatíte provizi za zprostředkování bytu, v případě potřeby zajistíme financováni.
Možnost financování přes Českou Spořitelnu:
– zvýhodněnou úrokovou sazbu,
– možnost poskytnutí hypotéky až 90 % hodnoty nemovitosti,
– jednoduché a rychlé vyřízení hypoték,
– Expresní čerpání zdarma,
– Odhad nemovitosti zdarma
Zkolaudováno - Možnost k nastěhování
Pro bližší informace nás neváhejte kontaktovat.




















